全国BIM考试应用技能考试历年真题5
>>BIM考试真题:全国BIM考试应用技能考试历年真题5
四、 综合建模(45分)
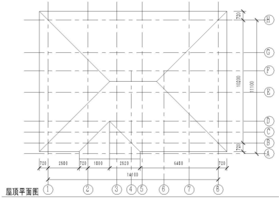
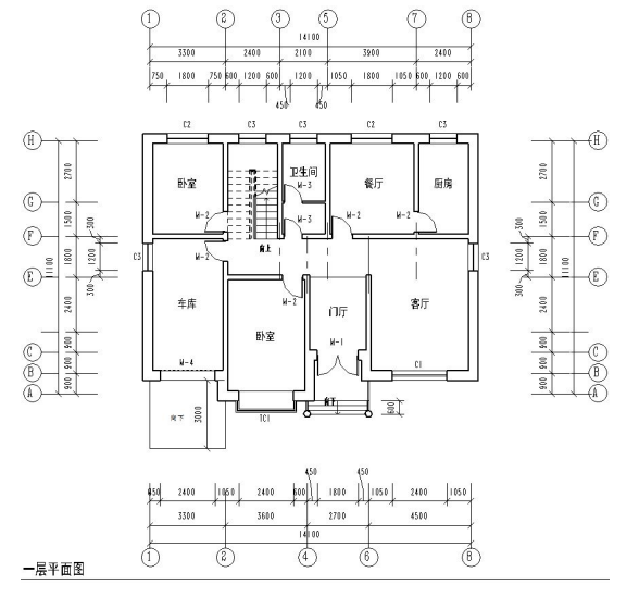
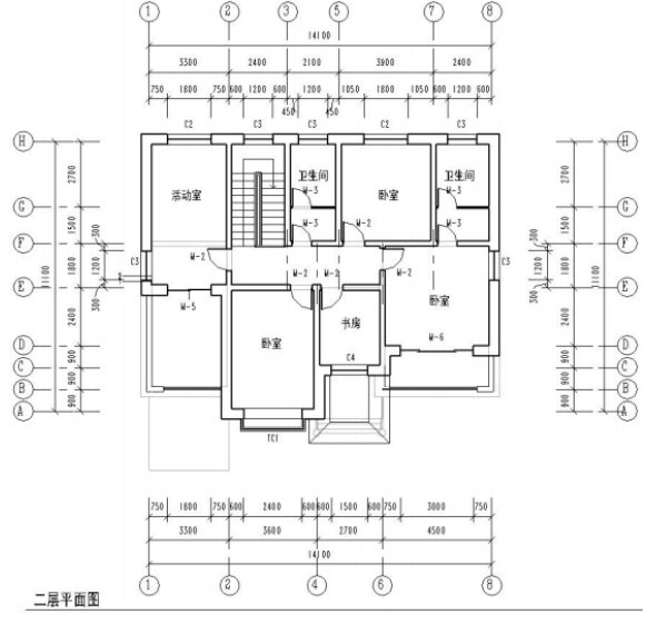
根据以下平面图及立面图给定的尺寸。建立如下图所示的别墅建筑模型。请以“别墅”为名将模型保存到考生文件夹中,具体要求如下:
1.基本建模
1.1.建立墙体模型,其中内墙厚度均为100mm.外墙厚度均为240mm.墙体材料自定;
1.2.建立各层楼板模型,其中各层楼板厚度均为150m,顶部均与各层标高平齐,并放置楼梯模型。扶手尺寸取适当值即可;
1.3.建立屋顶模型,其中屋顶为坡屋顶,厚度为400mm,各坡面坡度均为25度。
2.布置门窗
2.1.按平、立面要求。市置內外门窗,其中外墙门窗布置位置需精确,内部门窗对位置不作精确要求。采用建模软件内置构件集即可;
2.2.门构件集共有4种型号M-1、M-2、M-3、M-4、M-5、M-6,尺寸分别为800x2100、900x2100、800x2100、2400x2100、1800x2100、3000x2100;
2.3.窗构件集共有3种型号C1、C2、C3、C4,尺寸分别为400x1600、1800x1600、1200x1600、1500x1600。
3.建立图纸与明细表
3.1.建立平面及立面图。并进行基本民寸及房间,门窗的标注;
3.2.建立门、窗明细表,明细表均应包含构件集类型。型号、高度及合计中段,并按类型统计个数。
以上是历年的一些真题,想获取更多BIM考试模拟题的考生多多关注小编的分享,只有多做题才能掌握的更高效,希望这些真题可以给大家带来参考,明确目前的复习目标。登陆坦途网BIM考试频道,可获取更多有关考试的信息,期待你的到来!
温馨提示:因考试政策、内容不断变化与调整,坦途网提供的以上信息仅供参考,如有异议,请考生以权威部门公布的内容为准!
