全国BIM考试应用技能考试历年真题4
导读:距离2019年BIM考试越来越近,小编今天带来历年真题给正在备考的考生,希望大家可以认真练习并参考,总结重要知识考点,争取在今年的考试中取得好成绩,成功通过考试!
>>BIM考试真题:全国BIM考试应用技能考试历年真题4
二、体量建模(15分)
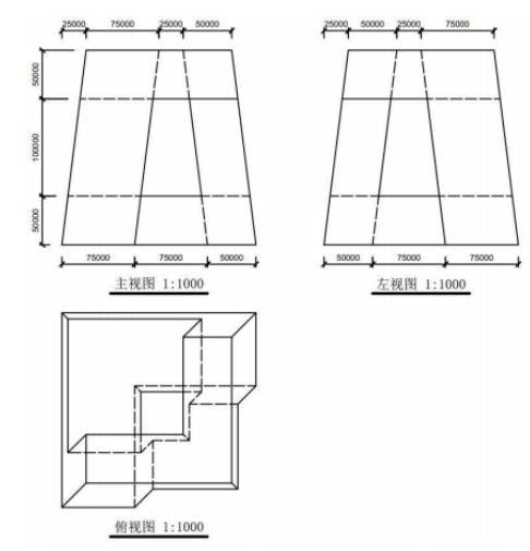
根据三视图给定的尺寸,建立如下图所示的中央电视台总部大楼简化模型,并通过软件自动计算该模型的体积与总表面积。请以“央视”为名将模型保存到考生文件夹中。
该模型体积为()立方米;
该模型总表面积为()平方米。
三、建筑部品的参数化建模(20 分)
根据右侧平面图及立面图给定的尺寸,建立如左图所示的吊灯构件集模型,并设置“副灯数量”参数,控制四周副灯的数量。请以“吊灯”为名将构件集模型保存到考生文件夹中。
以上是历年的一些真题,想获取更多BIM考试模拟题的考生多多关注小编的分享,只有多做题才能掌握的更高效,希望这些真题可以给大家带来参考,明确目前的复习目标。登陆坦途网BIM考试频道,可获取更多有关考试的信息,期待你的到来!
温馨提示:因考试政策、内容不断变化与调整,坦途网提供的以上信息仅供参考,如有异议,请考生以权威部门公布的内容为准!
BIM考试培训课程免费试听
