第4期全国BIM技能等级一级考试试卷
>>BIM考试真题:第4期全国BIM技能等级一级考试试卷
考试要求:新建文件夹(以考生考号+姓名命名),用于存放本次考试中生成的全部文件。 (考试时间180分钟)
一、根据下图中给定的尺寸绘制标高轴网。某建筑共三层,首层地面标高为±0.000,层高为3m,要求两侧标头都显示,将轴网颜色设置为红色并进行尺寸标注。请将模型以“轴网”为文件名保存到考生文件夹中。(10分)
二、根据下图中给定的尺寸及详图大样新建楼板,顶部所在标高为±0.000,命名为“卫生间楼板”,构造层保持不变,水泥砂浆层进行放坡,并创建洞口。请将模型以“楼板”为文件名保存到考生文件夹中。 (20分)
三、图为某牛腿柱。请按图示尺寸要求建立该牛腿柱的体量模型。最终结果以“牛腿柱”为文件名称保存在考生文件夹中.(10分)
四、图为某栏杆。请按照图示尺寸要求新建并制作栏杆的构建集,截面尺寸除扶手外其余杆件均相同。材质方面,扶手及其他杆件材质设为“木材”,挡板材质设为“玻璃”。最终结果以“栏杆”为文件名保存在考生文件夹中.(20分)
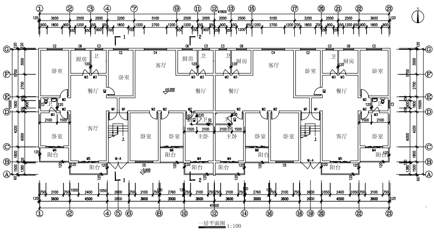
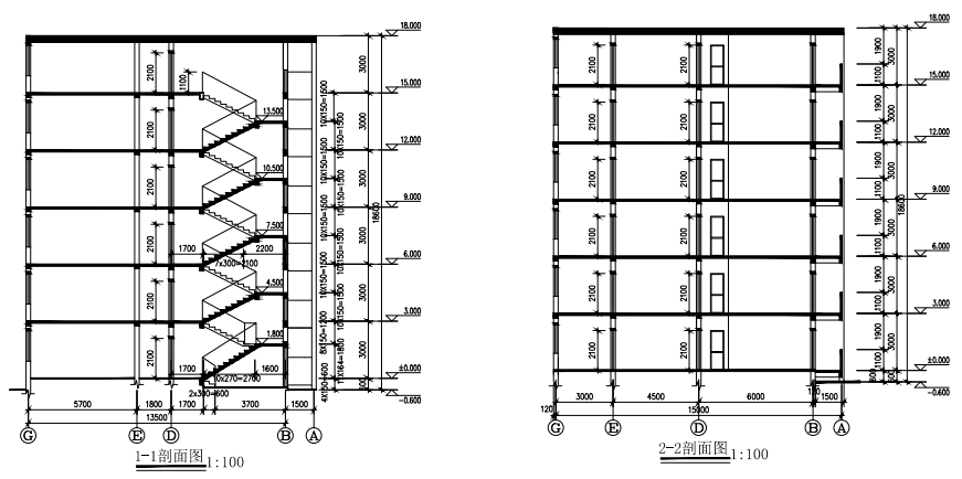
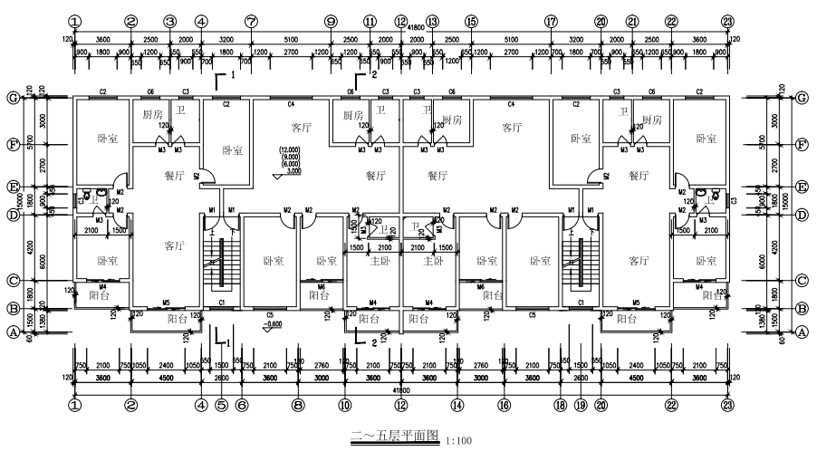
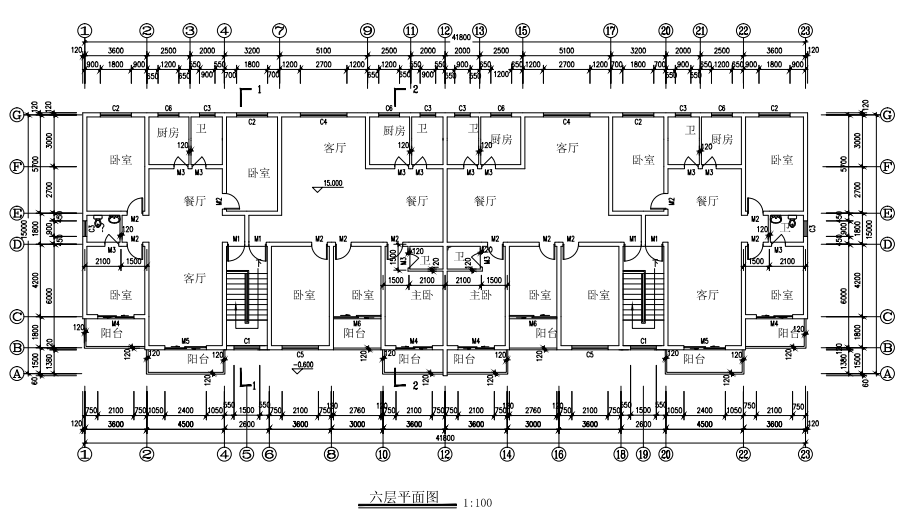
五、根据给出的平面图、立面图、剖面图及楼梯详图,在考生文件夹中给出的“第四期BIM一级考试样板文件”基础上,创建建筑物三维模型,以“六层建筑”为文件名保存到考生文件夹中。具体要求如下: (40分)
(1)设置项目信息: (3分)
1)项目发布日期:2014年6月18日。
2)客户名称:街心花园小区。
3)项目地址:中国×××省×××市×××路×××号。
4)项目名称:N2栋。
5)项目编号:2014xxx-1。
(2)基本建模: (13分)
1)创建墙体模型,墙体定位及厚度见平面图,墙体均沿轴线对称。
2)创建楼板及屋顶模型,其中楼板厚度150mm,平屋顶厚度350mm。
3)创建楼梯模型,楼梯扶手和梯井尺寸取适当值即可。
4)标注房间名称。
(3)放置门窗及家具: (10分)
1)放置门窗,门窗尺寸见表1,其中外墙门窗布置位置需精确,内部门窗对位置不作精确要求。
2)放置家具。根据平面图,对轴线1、2和轴线22、23间的卫生间进行蹲便器和洗手盆布置,布置位置参考图中取适当位置即可。
注:门窗及家具构件使用模板文件中给出的构件集即可,不要载入和应用新的构件集。
(4)按照表1创建门窗明细表。 (3分)
(5)建立图纸: (8分)
建立AO尺寸图纸,根据给定的平立剖面图,将模型的平面图、立面图、剖面图及门窗明细表分别插入图纸中,并根据图纸内容将图纸识图命名,图纸编号任意,可布置多张图纸。
(6)设置相机,对生成的三维视图命名: (3分)
在一楼轴线1、2间的卫生间内设置相机,使相机照向蹲便器和洗手盘,调整生成的三维视图,使蹲便器和洗手盘可见,将该三维视图命名为“相机一卫生间”;在一楼轴线2、4间的客厅处设置相机,使相机照向餐厅方向,调整生成的三维视图,使厨房、卫生间门可见,将生成的三维视图命名为“相机一餐厅”。



这就是小编今天提供的内容了,这些真题还需要同学们认真看哦。更多2018年BIM考试内容请登录坦途网BIM考试频道,这里每天会定期更新BIM真题和考试辅导资料,供大家模拟练习。赶快加入我们吧~
温馨提示:因考试政策、内容不断变化与调整,坦途网提供的以上信息仅供参考,如有异议,请考生以权威部门公布的内容为准!
