第3期全国BIM技能等级一级考试试卷
>>BIM考试真题:第3期全国BIM技能等级一级考试试卷
考试要求:新建文件夹(以考生考号+姓名命名),用于存放本次考试中生成的全部文件。 (考试时间180分-钟)
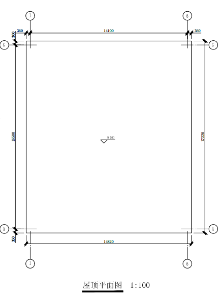
1、某建筑共50层,其中首层地面标高为±0.000,首层层高6.0米,第二至第四层层高4.8米,第五层及以上均层高4.2米。请按要求建立项目标高,并建立每个标高的楼层平面视图。并且,请按照以下平面图中的轴网要求绘制项目轴网。最终结果以“标高轴网”为文件名保存为样板文件,放在考生文件夹中。 (10分)
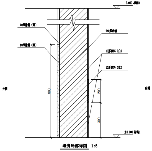
2、按照下图所示,新建项目文件,创建如下墙类型,并将其命名为“等级考试一外墙”。之后,以标高1到标高2为墙高,创建半径为5000mm(以墙核心层内侧为基准)的圆形墙体。最终结果以“墙体”为文件名保存在考生文件夹中。 (20分)
3、根据下图中给定的投影尺寸,创建形体体量模型,基础底标高为-2.1米,设置该模型材质为混凝土。请将模型体积用“模型体积”为文件名以文本格式保存在考生文件夹中,模型文件以“杯形基础”为文件名保存到考生文件夹中。(20分)
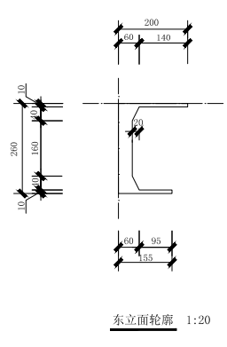
4、根据下图中给定的轮廓与路径,创建内建构件模型。请将模型文件以“柱顶饰条”为文件名保存到考生文件夹中(10分)
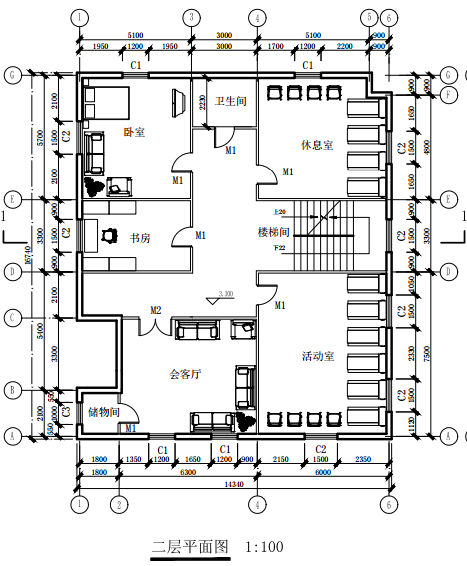
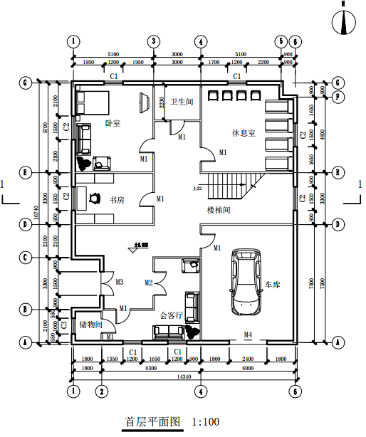
5、参照下面给出的平面图、立面图,在考生文件夹中给出的“三层建筑模板”文件的基础上,创建三层建筑模型,具体要求如下: (40分)
(1)基本建模(10分)
1)创建墙体模型,其中内墙厚度均为1OOmm,外墙厚度均为240mm。
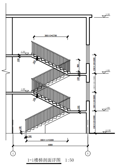
2)建立各层楼板模型,楼板厚度均为150mm,顶部与各层标高平齐。楼板在楼梯间处应开洞,并按图中尺寸创建并放置楼梯模型。楼梯扶手和梯井尺寸取适当值即可。
3)建立屋顶模型。屋顶为平屋顶,厚度为200mm,出檐取240mm。
4)按平面图要求创建房间,并标注房间名称。
5)三层与二层的平面布置与尺寸完全一样。
(2)放置门窗及家具(15分)
1)按平、立面要求,布置内外门窗和家具。其中外墙门窗布置位置需精确,内部门窗对位置不作精确要求。家具布置位置参考图中取适当位置即可。
2)门构件集共有4种型号:M1、M2、M3、M4,尺寸分别为:900x2000、1500x2100、1500x2000、2400x2100。同样的,窗构件集共有3种型号:C1、C2、C3,尺寸分别为:1200x1500、 1500x1500、 1OOOx1200.
3)家具构件和门构件使用模板文件中给出的构件集即可,不要载入和应用新的构件集。
(3)创建视图与明细表(15分)
1)新建平面视图,并命名为“首层房间布置图”。该视图只显示墙体、门窗、房间和房间名称。视图中房间需着色,着色颜色自行取色即可。同时给出房间图例。
2)创建门、窗明细表,门、窗明细表均应包含构件集类型、型号、高度及合计字段。明细表按构件集类型统计个数。
3)建筑各层和屋顶标高处均应有对应的平面视图。
(4)最后,请将模型文件以“三层建筑”为文件名保存到考生文件夹中。


这就是小编为大家整理的2018年BIM考试的内容了,后期的理念真题资料会持续在坦途网BIM考试频道更新,敬请关注。这里还有在线辅导老师为你解答问题,助你备考子路一臂之力,赶快来吧!
温馨提示:因考试政策、内容不断变化与调整,坦途网提供的以上信息仅供参考,如有异议,请考生以权威部门公布的内容为准!
