第2期全国BIM技能等级一级考试试卷1.2
>>BIM考试真题:第2期全国BIM技能等级一级考试试卷1.2
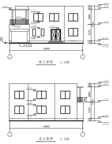
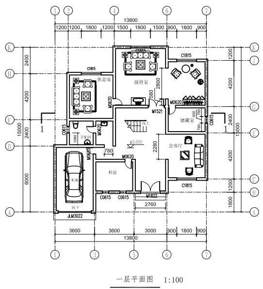
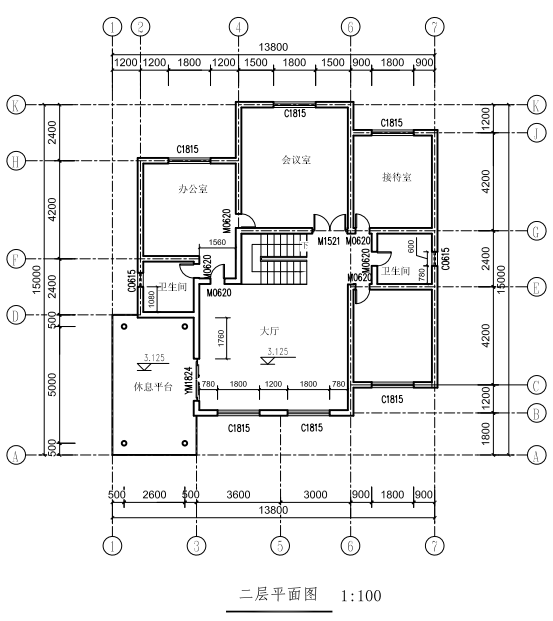
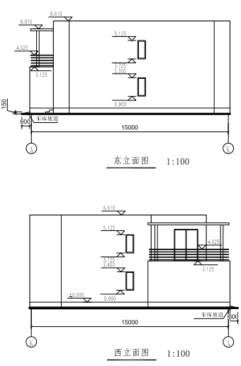
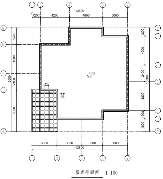
5、根据给出的图纸,按要求构建房屋模型,结果以“建筑”为文件名保存在考生文件夹下,并对模型进行渲染: (40分)
(1)已知建筑的内外墙厚均为240,沿轴线居中布置,按照平、立面图纸建立房屋模型,楼梯、大门入口台阶、车库入口坡道、阳台样式参照图自定义尺寸,二层棚架顶部标高与屋顶一致,棚架梁截面高15 0mm,宽100mm,棚架梁间距自定,其中窗的型号C1815,C0615,尺寸分别为800×1500mm, 600×1500mm;
门的型号M0615,M1521,M1822,JLM3022,YM1824,尺寸分别为600×1500mm,1500×2100mm, 1800×2200mm,3000×2200mm, 1800×2400mmo (25分)
(2)请对一层室内进行家具布置,可以参考给定的一层平面图。 (5分)
(3)对房屋不同部位附着材质,外墙体采用红色墙面涂料,勒脚采用灰色石材,屋顶及棚架采用蓝灰色涂料,立柱及栏杆采用白色涂料。 (5分)
(4)分别创建门和窗的明细表,门明细表包含类型、宽度、高度以及合计字段;窗明细表包含类型、底高度( 900mm)、宽度、高度以及合计字段。明细表按照类型进行成组和统计。 (3分)
(5)对房屋的三维模型进行渲染,设置蓝色背景,结果以“房屋渲染.JPG”为文件名,保存在文件夹中。 (2分)

这就是小编为大家整理的2018年BIM考试的内容了,后期的理念真题资料会持续在坦途网BIM考试频道更新,敬请关注。这里还有在线辅导老师为你解答问题,助你备考子路一臂之力,赶快来吧!
温馨提示:因考试政策、内容不断变化与调整,坦途网提供的以上信息仅供参考,如有异议,请考生以权威部门公布的内容为准!
