第1期全国BIM技能等级一级考试试卷1.2
导读:今天,坦途网小编为大家整理推送了第1期BIM考试技能等级真题,真题是备考中不能忽视的重点,只有从真题中总结考点,才能稳扎稳打,巩固知识。下面跟着小编一起学习吧!具体内容如下。
>>BIM考试真题:第1期全国BIM技能等级一级考试试卷1.2
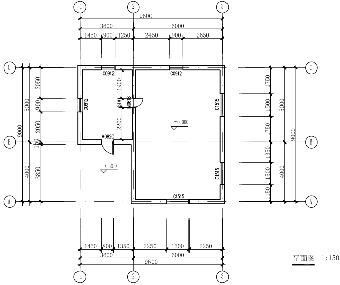
5、根据下面给出的平面图、立面图、三维图,建立房子的模型,具体要求如下: (40分)
(1)建立房子模型:
1)按照给出的平、立面图要求,绘制轴网及标高,并标注尺寸。
2)按照轴线创建墙体模型,其中内墙厚度均为200mm,外墙厚度均为300mm。
3)按照图纸中的尺寸在墙体中插入门和窗,其中门的型号:M0820,M0618,尺寸分别为800x2000mm, 600x1800mm;窗的型号:C0912,C1515,尺寸分别为900x1200mm, 1500x1500mm。
4)分别创建门和窗的明细表,门明细表包含类型、宽度、高度以及合计字段;窗明细表包含类型、底高度( 900mm)、宽度、高度以及合计字段。明细表按照类型进行成组和统计。
(2)建立A2尺寸的图纸,将模型的平面图、东立面图、西立面图、南立面图、北立面图以及门明细表和窗明细表分别插入至图纸中,并根据图纸内容将图纸视图命名,图纸编号任意。
(3)将模型文件以“房子.rvt”为文件名保存到考生文件夹中。
以上就是小编整理的内容了,掌握真题要点,达到高效复习,才能更好地备考。了解更多内容,不妨前来坦途网BIM考试频道,我们有在线老师为你解答问题,或者拨打我们的热线电话都可以进行咨询哦~
温馨提示:因考试政策、内容不断变化与调整,坦途网提供的以上信息仅供参考,如有异议,请考生以权威部门公布的内容为准!
BIM考试培训课程免费试听
